Provisionsfrei und Bezugsfrei

Hechelstraße 5 – 13403 Berlin

Das Gebäude

Willkommen in der Hechelstraße 5 in 13403 Berlin. Dieses solide Gebäude befindet sich im Ortsteil Reinickendorf und bietet eine ideale Lage für urbanes Stadtleben.
Das Mehrfamilienhaus, teilunterkellert und erbaut im Jahr 1982, präsentiert sich in massiver Bauweise, die sowohl Langlebigkeit als auch zeitgemäßen Komfort gewährleistet. Mit seinen insgesamt fünf Geschossen – und einem Kellergeschoss – bietet es Platz für insgesamt zehn Wohneinheiten, die vielfältige Wohnmöglichkeiten für unterschiedliche Bedürfnisse bieten.

Das gepflegte Gebäude wurde kontinuierlich instandgehalten und modernisiert, wobei ab dem Jahr 2022 weitreichende Modernisierungen durchgeführt wurden, um einen modernen und energieeffizienten Standard zu gewährleisten. Im Jahr 2003 erfolgte eine umfassende Sanierung und Dämmung der Straßenfassade, gefolgt von weiteren Renovierungsarbeiten im Jahr 2005, darunter die Sanierung und Dämmung der Steildachflächen, Flachdachflächen sowie der Hoffassade.

Die Lage dieses Gebäudes bietet eine gute Anbindung an öffentliche Verkehrsmittel und Autobahnen, was für Pendler und lokale Annehmlichkeiten gleichermaßen von Vorteil ist. Es ist gut erreichbar und bietet Zugang zu den wichtigen Einrichtungen und Dienstleistungen in der Umgebung. Insgesamt präsentiert sich dieses Mehrfamilienhaus in der Hechelstraße als eine attraktive Investitionsmöglichkeit oder als idealer Wohnsitz für diejenigen, die das Leben im Berliner Raum genießen möchten. Das Gebäude wurde umfassend modernisiert und auf den neuesten Stand gebracht.

Aktuell wird eine neue Gasheizung eingebaut, um für eine effiziente und zuverlässige Beheizung der Wohnungen zu sorgen. Dieses Gebäude ist somit auf dem neuesten Stand der Technik und bietet seinen Bewohnern eine zeitgemäße Wohnqualität. Die Modernisierungsmaßnahmen erstreckten sich über den Zeitraum von 2022 bis 2023 und umfassen unter anderem:

Frontansicht Mehrfamilienhaus mit weißer Fassade und Flachdach aus Straßenperspektive mit Straßenbaum und parkenden Autos
Frontalansicht Mehrfamilienhauseingang Nr 5 mit Glas-Stahltür Seitenelementen vor heller Putzfassade
Leicht seitliche Straßenansicht eines viergeschossigen Mehrfamilienhauses mit heller Putzfassade und parkenden Autos

Die Wohnungen

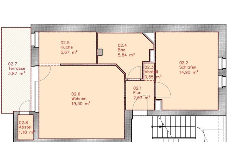
Wohnung 2 – Grundriss

Grundriss einer 2-Zimmer-Wohnung mit Terrasse Küche Bad Schlafzimmer Wohnbereich und Abstellraum

310.000 € Kaufpreis

Finanzierung ab 1.241 EUR
Hausgeld: 193 €
Diese Terrassenwohnung bietet eine ideale Möglichkeit zum Eigentumserwerb. Mit einer Größe von 54 m² und 2 Zimmern, einem Wohn- Esszimmer mit offener Küche, einem Schlafzimmer und einem Badezimmer ist sie gut strukturiert und funktional. Die Wohnung verfügt über praktische Ausstattungsdetails wie einen Abstellraum, einer schönen Terrasse und einem trockenen Keller. Ein hochwertiger Parkettfußboden verleiht der Wohnung ein stilvolles Ambiente. Ein optionaler Kfz-Stellplatz steht zur Verfügung. Die geräumige West-Terrasse bietet eine angenehme Ausrichtung für sonnige Stunden im Freien.

Galerie Wohnung 2

[URIS id=64801]

Wohnung 6 – Grundriss

Grundriss einer Wohnung als Draufsicht mit Balkon Schlafzimmer Küche Bad Kinderzimmer und großem verkauft Schriftzug

399.500 € Kaufpreis

Finanzierung ab 1.527 €

Hausgeld: 310 €  
Diese schöne Eigentumswohnung in Reinickendorf bietet 78 m² modernen Wohnraum in einer ruhigen Umgebung. Ursprünglich aus dem Jahr 1982, wurde sie im Jahr 2023 komplett modernisiert und renoviert. Die Wohnung verfügt über 3 Zimmer, eine separate Küche und ein Badezimmer. Der hochwertige Parkettfußboden schafft eine gemütliche Atmosphäre. Die Modernisierung umfasst u.a. neues Eichenparkett, Sockelleisten, Balkonbelag, Wand- und Deckenoberflächen sowie Innentüren und die komplette Elektrik. Dies sorgt für einen zeitgemäßen Charme und eine hochwertige Ausstattung. Ein Süd-Balkon mit Abstellkammer lädt zum Entspannen ein und bietet viel Sonnenschein. Zusätzlicher Stauraum ist im trockenen Keller vorhanden, und eine effiziente Zentralheizung aus 2023 sorgt für wohlige Wärme. Die Wohnung steht ab sofort zum Einzug bereit, und optional steht ein Parkplatz zur Verfügung.

Galerie Wohnung 6

[URIS id=61923]

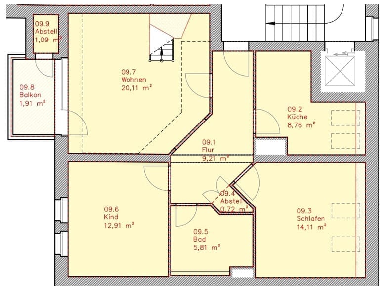
Wohnung 9 – Grundriss

Grundriss einer 3-Zimmer-Wohnung mit Balkon in Draufsicht inklusive Küche Bad Flur und Abstellraum

665.000 € Kaufpreis

Finanzierung ab 2.487 €

Hausgeld: 433 €
Diese Dachgeschosswohnung erstreckt sich über zwei Etagen und bietet 104 m² Wohnfläche. Sie verfügt über 3 Zimmer, eine sehr schöne Galerie, eine Küche und ein Badezimmer. Die Wohnung ist mit einem Balkon in Richtung Westen, einem praktischen Abstellraum und hochwertigem Parkettfußboden ausgestattet. Ein sofortiger Bezug ist möglich, die Wohnung wird über eine neue Gaszentralheizung aus 2023 beheizt. Zur Wohnung gehört auch ein Kellerraum und ein optionaler Stellplatz kann dazu erworben werden. Das Gebäude gehört zu einer renovierten und äußerst gepflegten Wohnanlage, die in massiver Bauweise errichtet wurde. Es gibt keinerlei Instandhaltungsstau, da das Objekt in 2023 umfassend modernisiert wurde.

Galerie Wohnung 9

[URIS id=62983]

Lage

Die angebotene Immobilie befindet sich in einer ruhigen und dennoch gut erreichbaren Lage in Berlin Reinickendorf. Die Hechelstraße ist eine charmante Wohnstraße, die von einer harmonischen Mischung aus Einfamilienhäusern und Mehrfamilienhäusern geprägt ist. Die Umgebung zeichnet sich durch eine angenehme Wohnatmosphäre aus, die sowohl Familien als auch Singles anspricht.
Die Verkehrsanbindung ist ausgezeichnet. In der Nähe finden Sie diverse Bushaltestellen und U-Bahn-Stationen, die eine schnelle Anbindung an das öffentliche Verkehrsnetz von Berlin gewährleisten. Auch die Autobahn ist in kurzer Zeit erreichbar, was die Mobilität der Bewohner weiter erhöht. Die Hechelstraße bietet eine gute Auswahl an Einkaufsmöglichkeiten, Restaurants und Cafés in fußläufiger Entfernung. Für Freizeitaktivitäten und Erholung bietet sich der nahegelegene Stadtpark Reinickendorf an, der sich perfekt für Spaziergänge, Sport und Picknicks eignet. Insgesamt ist die Lage der Immobilie in der Hechelstraße 5 ideal für Menschen, die die Vorzüge einer ruhigen Wohngegend schätzen, aber dennoch die Annehmlichkeiten der Großstadt Berlin in hervorragender Erreichbarkeit genießen möchten.

Besichtigung und Kontakt

Eine Besichtigung ist jederzeit nach Absprache möglich. Nähere Informationen stellen wir Ihnen gerne vorab zur Verfügung. Auf E-Mail-Anfragen ohne vollständige Kontaktdaten erteilen wir keine Auskünfte. Wir freuen uns über Ihre Kontaktaufnahme unter [email protected] oder (030) 95 9996 161.

Wir finden die ideale Immobilienfinanzierung

Informationen zu den besonders günstigen Finanzierungsmöglichkeiten, die wir über unsere Partner unter der Dienstleistungsmarke FLEXHYPO anbieten und die aktuellen Zinssätze, finden Sie auf unserer Internetseite flexhypo.de.

Mit einer guten Finanzierung können sie viel Geld sparen, das liegt an der langen Laufzeit, sowie an der meist relativ hohen Summe eines Baukredits. Denn ein Angebot – zum Beispiel von Ihrer Hausbank – können Sie erst einschätzen, wenn Sie es mit den Konditionen anderer Anbieter vergleichen. Wir bieten einen umfassenden Konditionsvergleich und begleiten Sie auf dem Weg zur Finanzierung Ihrer Traum-Immobilie.

Kontaktformular





    Mit dem Absenden des Kontaktformulars erklären Sie sich damit einverstanden, dass Ihre Daten zur Bearbeitung Ihres Anliegens verwendet werden (Weitere Informationen und Widerrufshinweise finden Sie in der Datenschutzerklärung).