Ana Sayfa » Gayrimenkul » Yüksek kaliteli tadilat: Balkonlu ve ankastre mutfaklı aydınlık 3 odalı daire






































































Dieses Objekt ist zur Zeit leider nicht verfügbar.
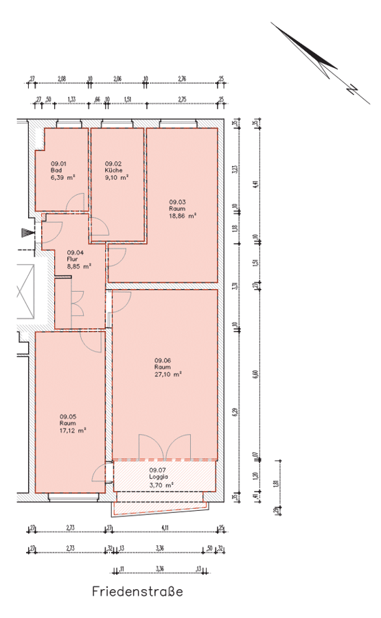
Bu 3 odalı daire, bakımlı bir apartman dairesinde yer almaktadır ve el değmemiş durumda ve kiralanmış olarak sunulmaktadır. Özellikle gelişim potansiyeli olan mevcut bir mülk arayan yatırımcılar için uygundur.
İyi tasarlanmış plana, geniş bir oturma odası, iki ek oda ve hem oturma odasından hem de yatak odalarından birinden erişilebilen bir balkon ile işlevsel bir oda düzeni sunulmaktadır. Daire bu sayede gelecekteki kişisel modernizasyon için sağlam bir temel oluşturmaktadır.
Önemli not:
Tanıtım dosyasında gösterilen görseller, aynı site içindeki nesne eşdeğer bir daireden alınmıştır ve bu daire kapsamlı bir şekilde restore edilmiştir. Bu görseller yalnızca modernizasyon sonrası olası durumun örneklenmesi amacıyla kullanılmıştır. Teklif edilen daire şu anda harap durumdadır.
Bakımlı ortak alanlar ve sağlam yapı, genel tabloyu tamamlıyor.
Daire şu anda kiracı tarafından oturulmakta olup ve sürekli kira geliri sağlamaktadır, bu da onu özellikle yatırımcılar için cazip kılmaktadır.
İNGİLİZCE
Bakımlı bir apartman dairesinde yer alan bu 3 odalı daire, tadilat gerektiren ve mevcut durumda kiracılıdır. Özellikle sağlam temellere ve geliştirme potansiyeline sahip bir gayrimenkul arayan yatırımcılar için uygundur.
İyi tasarlanmış yerleşim planı, ferah bir oturma odası, iki ek oda ve hem oturma odasından hem de yatak odalarından birinden erişilebilen bir balkon ile işlevsel bir zemin planı sunmaktadır. Daire bu nedenle gelecekte bireysel modernizasyon için mükemmel bir zemin oluşturmaktadır.
Önemli not:
Bu ifşaatta gösterilen görseller, aynı konut kompleksindeki, tamamen yenilenmiş, birebir aynı daireye aittir. Bunlar yalnızca yenileme sonrası olası bir standardı göstermek amacıyla verilmiştir. Burada sunulan daire şu anda tadilat görmemiş durumdadır.
Bakımlı ortak alanlar ve sağlam yapı, mülkün genel kalitesini daha da vurguluyor.
Daire şu anda kiracıyla birlikte kiralanmış olup, devam eden kira geliri elde etmektedir, bu da onu yatırımcılar için cazip bir fırsat haline getirmektedir.
Önceden randevu alınarak her zaman görülebilir. Size önceden daha ayrıntılı bilgi vermekten mutluluk duyacağız.
Tam iletişim bilgileri olmadan e-posta sorularına yanıt vermeyeceğiz. Mülkünüzün piyasa değerini öğrenmek veya mülkünüzü satmak mı istiyorsunuz?
Lütfen web sitemizi de ziyaret edin:
FLEXHYPO hizmet markası altında ortaklarımız aracılığıyla sunduğumuz özellikle uygun finansman seçenekleri ve güncel faiz oranları hakkında bilgileri web sitemizde bulabilirsiniz.
Randevu ile her zaman görüntüleme mümkündür. Size önceden daha ayrıntılı bilgi vermekten mutluluk duyacağız.
Tam iletişim bilgileri olmadan e-posta sorularına yanıt vermeyeceğiz. Mülkünüzün piyasa değerini öğrenmek veya mülkünüzü satmak mı istiyorsunuz?
Lütfen web sitemizi de ziyaret edin:
FLEXHYPO hizmet markası altında ortaklarımız aracılığıyla sunduğumuz özellikle uygun finansman seçenekleri ve güncel faiz oranları hakkında bilgileri web sitemizde bulabilirsiniz.
Daire, şehrin güneydoğusunda yer alan, oturmuş ve sakin bir yerleşim bölgesi olan Berlin'in Adlershof semtindeki Friedenstraße'de yer almaktadır.
Çevrede konutlar, bol yeşil alan ve keyifli bir komşuluk hakimdir. Günlük ihtiyaçlar için alışveriş yerleri, fırınlar, restoranlar, kafeler ile doktor ve eczaneler yakın çevrede bulunmakta olup, hızlı bir şekilde ulaşılabilmektedir.
Adlershof, Berlin'in dinamik ve sürekli gelişen yerlerinden biridir. Çok sayıda araştırma kurumu, üniversite enstitüsü ve şirketi barındıran Adlershof Bilim ve Teknoloji Parkı yalnızca birkaç dakika uzaklıktadır.
Toplu taşımaya erişim çok iyi. Birden fazla otobüs hattı ve S-Bahn (Banliyö Treni), şehir merkezine, BER Havalimanı'na ve Berlin'in diğer bölgelerine hızlı bağlantı sağlıyor.
Çevre, eğlence ve dinlenme için de çok sayıda imkan sunmaktadır. Yeşil alanlar, parklar ve yakındaki Dahme Nehri, yürüyüşler, spor ve açık havada dinlenme için davetkar ortamlar sunuyor.
Sakin yaşam bölgesinin, iyi altyapının ve hızlı ulaşım bağlantısının birleşimi bu konumu özellikle cazip kılmaktadır.
İNGİLİZCE
Daire, şehrin güneydoğusunda yer alan, köklü ve sakin bir yerleşim bölgesi olan Adlershof'un Berlin semtindeki Friedenstraße'de bulunmaktadır.
Mahalle, konut binaları, yeşil çevresi ve hoş bir yaşam ortamıyla karakterize edilmektedir. Günlük ihtiyaçlar için dükkanlar, fırınlar, restoranlar, kafeler, eczaneler ve sağlık hizmetleri yakında bulunmakta olup kolayca ulaşılabilmektedir.
Adlershof, Berlin'in en dinamik ve sürekli gelişen bölgelerinden biridir. Çok sayıda araştırma enstitüsüne, üniversite tesisine ve yenilikçi şirkete ev sahipliği yapan ünlü Adlershof Bilim ve Teknoloji Parkı, yalnızca birkaç dakika uzaklıktadır.
Toplu taşıma bağlantıları mükemmel. Birçok otobüs hattı ve S-Bahn, Berlin şehir merkezine, Berlin Brandenburg Havalimanı'na (BER) ve şehrin diğer bölgelerine kolay erişim sağlamaktadır.
Eğlence ve dinlenme için çevrede çeşitli yeşil alanlar ve parklar bulunmaktadır. Yakındaki Dahme nehri de yürüyüş, spor ve açık hava dinlenmesi için fırsatlar sunmaktadır.
Sakin bir konut bölgesi, güçlü altyapı ve elverişli ulaşım bağlantılarının birleşimi bu bölgeyi özellikle çekici kılmaktadır.
Immobilien-Karte anzeigen, Daten an Google Maps (Datenschutzerklärung) übertragen.
Immobilie'nin daraltılmış konumu sadece belirsiz bir durumdur.