Pagina iniziale » Immobili » Luminoso appartamento di 2 locali con balcone in posizione tranquilla




























































Dieses Objekt ist zur Zeit leider nicht verfügbar.
Diese 2-Zimmer-Wohnung befindet sich in einem soliden Mehrfamilienhaus und wird derzeit umfassend renoviert, sodass sie sich zum Einzug in einem vollständig neu renovierten Zustand präsentieren wird. Klare Raumstrukturen, helle Wohnbereiche und eine angenehme Wohnatmosphäre machen die Wohnung ideal für Singles oder Paare, die urbanes Wohnen mit Komfort verbinden möchten.
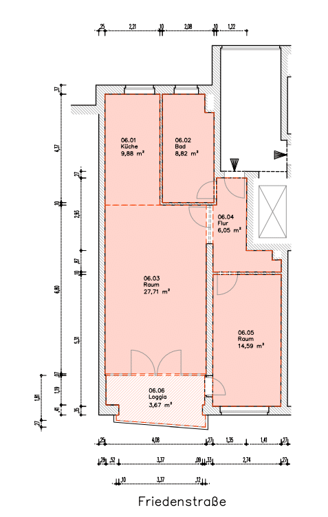
Beim Betreten der Wohnung gelangt man in einen funktionalen Flur, der ausreichend Platz für Garderobe und Stauraum bietet. Von hier aus erschließen sich alle Räume der Wohnung. Das großzügige Wohn- und Esszimmer bildet das Herzstück der Wohnung und überzeugt durch seine Weitläufigkeit sowie den direkten Zugang zum Balkon. Große Fenster sorgen für viel Tageslicht und schaffen ein freundliches, offenes Raumgefühl.
Die separate Küche ist praktisch geschnitten und bietet ausreichend Platz für eine Einbauküche, die Bestandteil der Wohnung ist und beim Einzug erhalten bleibt. Ein Fenster sorgt auch hier für angenehmes Tageslicht und eine gute Belüftung.
Das Schlafzimmer ist ruhig gelegen und bietet genügend Platz für ein großes Bett sowie zusätzliche Möbel. Durch die klare Raumform lässt sich der Raum vielseitig und individuell gestalten.
Das Badezimmer ist hell gefliest und verfügt über eine Badewanne, ein Waschbecken sowie ein WC. Ein Fenster sorgt für Tageslicht und eine natürliche Belüftung. Die Renovierung der Wohnung sorgt insgesamt für einen modernen, gepflegten Eindruck und rundet das attraktive Gesamtbild ab.
Die aktuelle Jahresnettokaltmiete beträgt ca. 10.000 €.
Le visite sono possibili in qualsiasi momento previo accordo. Saremo lieti di fornirvi informazioni più dettagliate in anticipo.
Non risponderemo alle richieste via e-mail senza i dati di contatto completi. Desiderate conoscere il valore di mercato della vostra proprietà o vendere la vostra proprietà?
Visitate anche il nostro sito web:
Le informazioni sulle opzioni di finanziamento particolarmente favorevoli che offriamo attraverso i nostri partner con il marchio di servizi FLEXHYPO e gli attuali tassi di interesse sono disponibili sul nostro sito web.
La visita è possibile in qualsiasi momento su appuntamento. Saremo lieti di fornirvi in anticipo informazioni più dettagliate.
Non risponderemo alle richieste via e-mail senza i dati di contatto completi. Desiderate conoscere il valore di mercato del vostro immobile o vendere il vostro immobile?
Visitate anche il nostro sito web:
Le informazioni sulle opzioni di finanziamento particolarmente favorevoli che offriamo attraverso i nostri partner con il marchio di servizi FLEXHYPO e gli attuali tassi di interesse sono disponibili sul nostro sito web.
Die Friedenstraße liegt im beliebten Berliner Stadtteil Adlershof im Bezirk Treptow-Köpenick. Die Umgebung ist geprägt von einer ruhigen, gewachsenen Wohnstruktur und bietet gleichzeitig eine sehr gute Anbindung an das städtische Leben.
In unmittelbarer Nähe befinden sich zahlreiche Einkaufsmöglichkeiten für den täglichen Bedarf, Cafés, Bäckereien sowie Restaurants. Der Wissenschafts- und Technologiepark Adlershof ist ebenfalls schnell erreichbar und macht die Lage besonders attraktiv für Berufstätige und Studierende.
Die Anbindung an den öffentlichen Nahverkehr ist hervorragend: S-Bahn- und Tramverbindungen sind fußläufig erreichbar und ermöglichen eine schnelle Verbindung in die Berliner Innenstadt sowie in angrenzende Bezirke. Auch Grünflächen und Naherholungsgebiete befinden sich in der Umgebung und laden zu Spaziergängen, sportlichen Aktivitäten oder entspannten Stunden im Freien ein.
Die Kombination aus ruhigem Wohnen, urbaner Infrastruktur und guter Verkehrsanbindung macht diese Lage besonders attraktiv.
Se la carta immobiliare viene analizzata, i dati vengono trasmessi a Google Maps (Datenschutzerklärung).
La posizione di immobilizzazione è solo un'angolazione non chiara.