Piękne, wynajmowane 3-pokojowe mieszkanie w cichej, górnej lokalizacji z widokiem na oazę ogrodową.

40210 Düsseldorf, Etagenwohnung zum Kauf

Ergebnis 28 von 83

Dane kontaktowe

Sprzedany

Dieses Objekt ist zur Zeit leider nicht verfügbar.

Objektdaten

  • Objekt-ID
    649
  • Objekttypen
    Płaski, płaski
  • Adres
    40210 Düsseldorf
  • Etage
    1
  • Etagen im Haus
    5
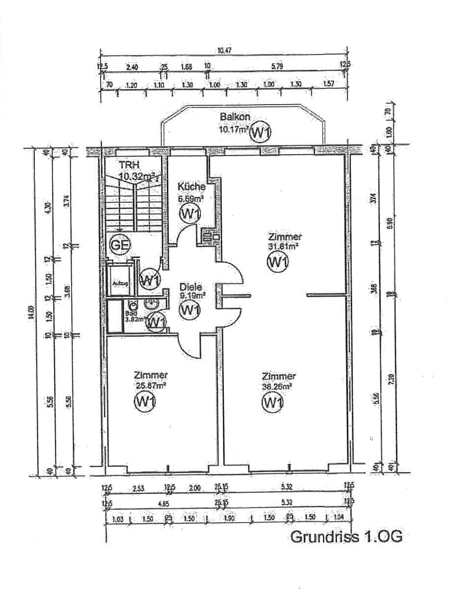
  • Wohnfläche ok.
    121 m²
  • Zimmer
    3
  • Schlafzimmer
    2
  • Badezimmer
    1
  • Heizungsart
    Etagenheizung
  • Wesentlicher Energieträger
    Gaz
  • Baujahr
    1955
  • Zustand
    modernisiert
  • Status
    vermietet
  • Käuferprovision
    Für die Käufer provisionsfrei
  • Hausgeld
    120,00 EUR
  • Kaufpreis
    540 000 EUR

Ausstattung / Merkmale

  • ✓ Keller
  • ✓ Personenaufzug

Energieausweis

  • Energieausweistyp
    Bedarfsausweis
  • Ausstellungsdatum
    02.02.2024
  • Gültig bis
    02.02.2034
  • Gebäudeart
    Wohngebäude
  • Baujahr lt. Energieausweis
    1955
  • Primärenergieträger
    Gas
  • Endenergiebedarf
    71,20 kWh/(m²-a)
  • Warmwasser enthalten
    ja
  • Klasa energetyczna
    B

Opis obiektu

Opis

Die gut vermietete Wohnung liegt im 1. Obergeschoss des 5-geschossigen Mehrfamilienhauses mit Aufzug.

Auf jeder Wohnetage gibt es nur jeweils eine Wohnung.

Das im Jahr 1955 gebaute und zuletzt 2023 energetisch und optisch hochwertig modernisierte Haus ist sehr gepflegt und in bestem Zustand.

Zu jeder Wohnung gehört ein separater Kellerraum.

Der hinter dem Haus liegende, idyllische Hausgarten wird von den Bewohnern gemeinsam genutzt.

Die Wohnung ist gut vermietet und bietet auf Grund der begehrten, ruhigen Wohnlage mitten in Düsseldorf, noch erhebliches Wertsteigerungspotential.

Der Verkauf erfolgt für die Erwerber provisionsfrei.

Ausstattung

3-Zimmer-Wohnung mit großem Balkon,
isolierverglaste,
teils bodentiefe Fenster,
Parkettboden,
Gas-Etagenheizung

Sonstiges

Eine Besichtigung ist jederzeit möglich. Es muss jedoch etwas Vorlaufzeit eingeplant werden.

Nähere Informationen stellen wir Ihnen gerne vorab zur Verfügung. Auf E-Mail-Anfragen ohne vollständige Kontaktdaten dürfen wir leider keine Auskünfte erteilen .

INNE INFORMACJE

Chcesz poznać wartość rynkową swojej nieruchomości lub ją sprzedać?

  • Często mamy już odpowiedniego nabywcę w naszym pliku
  • Nasi eksperci ds. nieruchomości chętnie Ci doradzą!

Czekamy na wiadomość od Ciebie pod adresem [email protected] lub (030) 95 9996 161

Zapraszamy również do odwiedzenia naszej strony internetowej: https://www.flexmakler.de

Informacje na temat szczególnie korzystnych opcji finansowania, które oferujemy za pośrednictwem naszych partnerów pod marką usług FLEXHYPO, oraz aktualnych stóp procentowych można znaleźć na naszej stronie internetowej. https://www.flexhypo.de

Lage

Absolut zentrale und dennoch ruhige Innenstadtlage im Stadtbezirk Pempelfort, fußläufig jeweils nur
ca. 10 Minuten von der Königsallee oder dem Hauptbahnhof entfernt.

Sämtliche Geschäfte des täglichen Bedarfs befinden sich in unmittelbarer Nähe auf der Immermannstraße
und der Oststraße.

Opisana pozycja nieruchomości jest tylko jednym z nieistotnych aspektów.

Import i prezentacja nieruchomości dla WordPress: WP-ImmoMakler